Product details
Product information
This Ringwood 12×13 log cabin is perfect home office, extra room in the garden. Assembly required.
- Assembly required
- Only fixings included
- Home Office, extra room in the garden
Features and benefits
- Tongue and Groove sheds have a high quality tongue and groove construction formed from watertight, interlocking, smooth planed boards. Tongue and groove constructions offers great protection from wind and rain penetration
- This structure is supplied untreated ready for you to apply your chosen wood preservative. Whether you paint or stain your structure, wood treatment helps to protect your structure against rot and decay
- Pressure treated floor bearers
- Draught sealed doors & opening windows
- We recommend that our Log cabins are assembled on a pre-laid, solid and level concrete base
- Provided with secure lock & key
- Planning friendly external ridge height does not exceed 2.5m
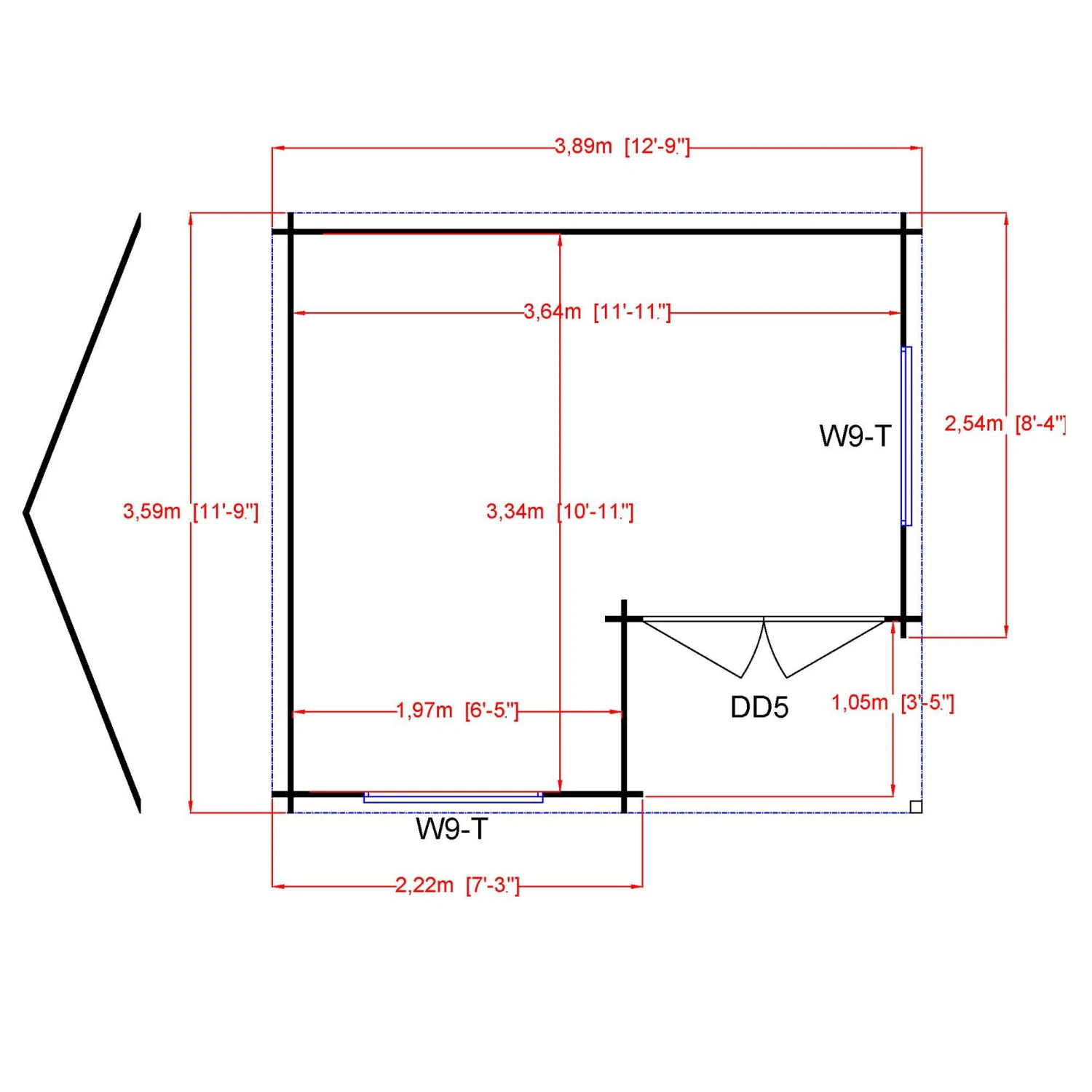
- The dimensions given refer to the external dimensions of the product unless otherwise stated
- This structure is supplied unpainted and empty. The base board shown in the image is not included
Specifications
| Base included | Base not included |
|---|---|
| Cladding thickness | 28mm |
| Cladding type | Tongue & groove |
| Depth (m) | 3.89m |
| Height (m) | 2.5m |
| Locking mechanism | Mortice lock |
| Made in | England |
| Material | European softwood |
| Number of doors | 2 |
| Number of fixed windows | 2 |
| Roof type | Apex |
| Width (m) | 3.59m |
| Product code | 5019804119721 |















Reviews
There are no reviews yet.